
特点
粉尘加湿机是冶金、矿山、建材、化工、电厂、锅炉等行业用以对粉尘和粉状物料加湿并输送至下一道处理程序,有效地防止粉尘和粉状物料在装卸运输过程中产生飞扬。
工作原理
除尘器处理回收的粉尘经过下料卸灰阀进入DSZ系列加湿搅拌机的入料斗内,由卸灰旋转叶轮将灰尘送入机体内的螺旋输送叶片上,经螺旋推入加湿搅拌主筒,在螺旋体均匀的拌料下,水喷淋均匀注入料内,在匀速搅拌的作用下,使粉尘加湿,加湿后的粉尘在多柱螺旋线性的推力作用下,从出料口缓缓送出,卸入机体外的粉尘运送装置。在螺旋体的匀速运转时,振动装置间歇性的工作,使拌料筒周壁等变幅振荡,将加湿后的粘性粉体与金属筒壁脱离,完全送至卸料口排出。
该机由主体、电控柜、主传动、上卸料机、螺旋输料机、多柱式线性搅拌器、振动器、及多管喷淋装置等部分组成。整机体固定在由槽钢焊接制作的机座上,输送拌料主筒体由四组弹性元件支撑,与机座传动装置软性密封连接,主筒顶部固定座上安装振动电机,通过振动装置,使主筒体产生同步幅度振荡。主机减速装置采用皮带缓冲减速传动机构,彻底杜绝闷车,堵转现象,减少停机清理时间,提高工作效率。
规格、参数
| 型号 |
生产能力
(t/d)
|
主机功率
(kw)
|
给料电机功率
(kw)
|
振动电机功率
(kw)
|
适用温度
(℃)
|
水压(Mpa) |
| DSZ-50 |
15 |
7.5 |
1.5 |
0.75 |
≤300 |
≥0.2 |
| DSZ-60 |
30 |
11 |
1.5 |
0.75 |
≤300 |
≥0.2 |
| DSZ-80 |
60 |
18.5 |
1.5 |
2.2 |
≤300 |
≥0.2 |
| DSZ-100 |
100 |
37 |
2.2 |
2.2 |
≤300 |
≥0.2 |
| DSZ-120 |
160 |
45 |
2.2 |
3.7 |
≤300 |
≥0.2 |
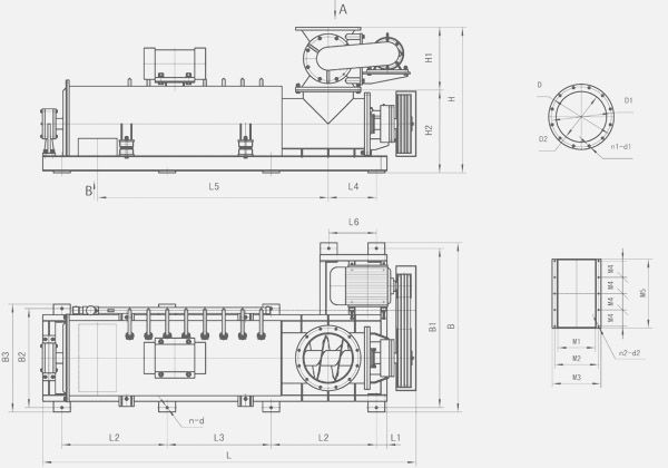
外形尺寸
| 代号 |
DSZ-50 |
DSZ-60 |
DSZ-80 |
DSZ-100 |
DSZ-120 |
| H |
1110 |
1160 |
1280 |
1750 |
1820 |
| H1 |
500 |
500 |
500 |
600 |
600 |
| H2 |
610 |
660 |
780 |
1150 |
1220 |
| L |
80 |
80 |
80 |
80 |
80 |
| L1 |
2700 |
2900 |
3100 |
3560 |
3760 |
| L2 |
800 |
840 |
920 |
1075 |
1140 |
| L3 |
800 |
830 |
900 |
1070 |
1140 |
| L4 |
385 |
385 |
415 |
580 |
435 |
| L5 |
1640 |
1840 |
2050 |
2475 |
2675 |
| L6 |
380 |
380 |
380 |
380 |
380 |
| B |
1300 |
1350 |
1740 |
2090 |
2090 |
| B1 |
1220 |
1270 |
1660 |
2010 |
2010 |
| B2 |
690 |
790 |
1000 |
1200
|
1200 |
| B3 |
760 |
860 |
1660 |
1290 |
1290 |
| D |
520 |
520 |
520 |
570 |
570 |
| D1 |
400 |
400 |
400 |
530 |
530 |
| D2 |
480 |
480 |
480 |
530 |
530 |
| M1 |
300 |
300 |
300 |
300 |
450
|
| M2 |
312 |
312 |
312 |
312 |
462 |
| M3 |
350 |
350 |
350 |
350 |
510 |
| M4 |
110 |
130 |
160 |
160 |
190
|
| M5 |
490 |
550 |
790 |
990 |
990 |
| n-d |
9-φ18 |
9-φ18 |
9-φ22 |
9-φ24 |
9-φ24 |
| n1-d1 |
16-φ18 |
16-φ18 |
16-φ18 |
16-φ18 |
16-φ18 |
| n2-d2 |
10-φ9 |
10-φ9 |
10-φ11 |
10-φ11 |
10-φ11 |
| 水管口径 |
1″ |
11/2 ″ |
2″ |
2″ |
11/2 ″ |

|